产品展示

当前位置:首页产品中心减速机系列产品使用及维护

使用及维护

六、使用及维护

    (一)使用
    1、本机适于连续工作制,允许正向反向运转。
    2、输出轴及输入轴与其它零件配合时,不允许直接锤击,以防损坏。
    3、输出轴及输入轴轴伸上的键按普通平键型式尺寸(GB1096-79)规定选用。立式减速机输出端机座止口直径D4的配合公差值符合公差配合(GB1800-1804-79)h9规定。
    4、使用联轴器与工作机械与电动机联接时应使轴线同心;减速机的安装误差不应大于所用联轴器的允许误差值。
    5、减速机安装后用手转动灵活。
    6、卧式双轴型减速机一般输出轴轴心线处于水平位置工作;必须倾斜使用时轴心线仰角不应超过15°(输出轴轴伸端向下)。
    7、立式减速机应输出轴轴伸端垂直向下使用。4以上脂润滑,可以水平使用。
    8、安装后的减速机,正式使用前必须进行试运转;在空运转正常的情况下,再逐渐加载运转。
    9、冲击载荷较大、起动频繁时机座与基础应自配定位肖钉,或选用液力联轴器。
    10、注意:出厂时0~ 4,42,420机型已装好润滑脂,其余机型号均未装润滑油,使用前务必按规定加足润滑油。
    11、按表八环境温度选用润滑油,若在高温或低温,即超出表八环境温度(-10C~50C)使用,应重新考虑润滑剂,或与我公司联系。

    (二)润滑
    1、润滑油的选择及润滑方式见表八。当倾斜安装时可采用油脂润滑,立式5以上均有油泵循环润滑,齿轮油泵与三相专用异步电动机直联。开车前先启动油泵微电动机,视油泵是否供油、否则应将微电动机接线换相、因油泵是按指定方向运转的。油泵处于正常工作后应使油面高度保持在圆形油标中线位置、油泵滤油器应安装牢固、要定期清洗、以防堵塞、影响润滑效果,油泵与减速机端面联接处有 “O”型密封圈、防止渗油。
    2、加换油制度
    第一次加油动转两周后应更换新油,并将内部油污冲净。以后每3~6个月更换一次。若环境温度较高或潮湿时应适当缩短换油时间。动转中减速机体内储油量必须保持规定油面高度,不宜过多或过少(见表九)。打开机座或法兰盘上的通气帽即可补充油。
    3、润滑方式及润滑油

润 滑 方 式 润 滑 油
单 级 双 级 三 级



推工业极压齿轮油

型号

型号

型号
国产 ISO
0

4
润滑脂 00

42
润滑脂 420 润滑脂 -10

5
40号
(30号)
FP68
5

7




53

128


齿

742

1285


齿

0

35
70号 EP150
8

12
齿轮泵 30

50
90号 EP220~ 460

润滑脂推荐用天津汉沽化学厂生产的减速机润滑脂(00号减速机脂).

    (三)维修(拆卸与装配)
    我公司生产各种类型的摆线减速机内部结构相同,因此其拆卸与装配工艺顺序基本一至,拆前应首先放净润滑油,立式减速机须先拆除油泵。拆装顺序见图四。
    1、拆卸:拆卸时首先松开联接螺栓,分解4、7,然后依次分解20,21,14,10,6等零件。装配时则顺序相反。
    2、装配
    装配时请注意以下各项:
    1)装配前,将全部另件清洗干净。
    2)对滚动及滑动表面涂润滑油,以形成初步润滑条件。
    3)两片摆线轮的标记A、B字头必须重合,并字头向上。
    4)注意调整橡胶油封中弹簧的松紧,并涂抹油脂。
    5)装配结束后注入润滑油或润滑脂,卧式油位达到表九的高度。立式油位达到油标中线。
    6)用手转动高速轴,经检查无故障即可开空车运转。对立式减速机应检查油泵工作情况是否良好,若均正常方可使用。
    7)对直联型进行分解时。严格按要求顺序进行,切禁先从电动机法兰处分解。

1、输出轴 2、16紧固环 3、压盖 4、机座 5、输入轴 6、偏心套 7、针齿壳 8、销套 9、销轴 10、间隔环 11、通气帽 12、针齿销
13、针齿套 14、摆线轮 15、法兰盘 17、风扇叶 18、风扇罩 19、止动环 20、轴用挡圈 21、挡圈 22、挡圈 23、挡圈 24、孔用挡圈
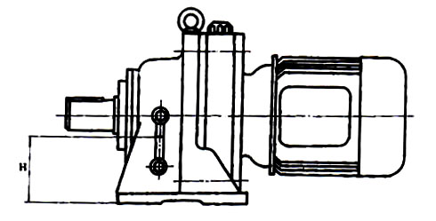
表九 摆线针轮减速机卧式油面高度尺寸
卧式减速机油位尺寸
机型号 油位尺寸H 机型号 油位尺寸H 机型号 油位尺寸H
5 115 53 115 742 180
6 140 63 160 842 220
7 150 74 170 853 210
8 175 84 200 953 255
9 220 85 200 1063 290
10 240 95 230 1174 375
11 320 106 260 1284 490
12 435 117 340 1285 490
    128 450